
INTRO
2024 | Master thesis
10th semester | 20 weeks
Supervisor: Erik Tonning Jensen
Examinator: Mats Hultman
Individual work
We are surrounded by an extreme amount of material things, and they attract us in different ways. At the same time, some choose a more minimal lifestyle by drastically reducing their number of possessions. This is often combined with also choosing a smaller living space.
Jane Bennett has advanced the theory that hoarders, who on the contrary own a large number of things, are especially sensitive to the power of things. She questions, through a theory of vital materialism, the strict separation between humans and the material world surrounding us. Ultimately, she suggests that we might treat the world around us better if we can see our kinship with it more clearly.
I believe that minimalists might be just as sensitive as hoarders to the power of things, and that the ideas put forward by Bennett can be an explanation for choosing a minimalist lifestyle. The constant noise of the things around us is so overwhelming that it prevents us from experiencing the ‘vibrant matter’ of the world. Our homes could offer a pause from all this noise. This project aims to investigate the potential of combining vital materialism and minimalism in residential architecture. How could the dwelling be designed from the perspective of ‘vital minimalism’?
THEORIES
Combining minimalism and vital materialism, I formulated some principles for designing a dwelling. The suggestion is that an approach of vital minimalism should:
- acknowledge that everything is in a state of change
- see the home as an assemblage
- offer a relative silence from the noise of things
- assume that the inhabitant owns a minimal number of things
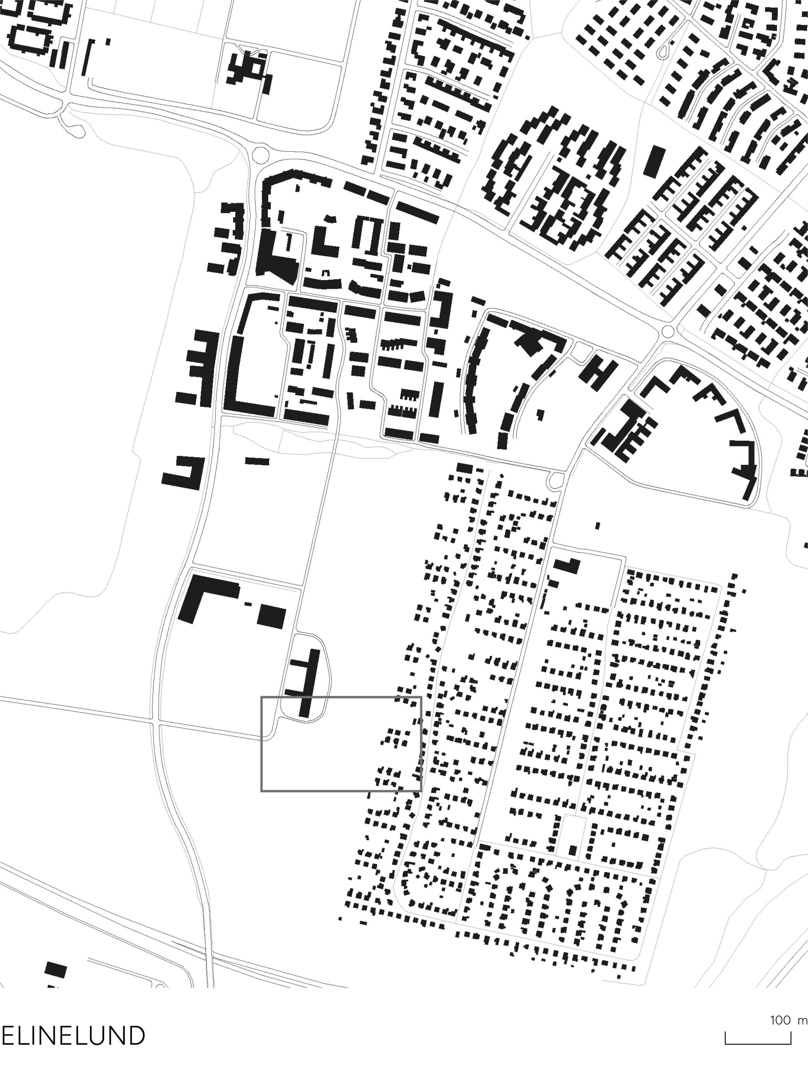
CONTEXT
Elinelund is an area in southeast Malmö. The chosen site is located next to an allotment area. As the city grows, this area is planned to consist of housing. Elinelund is conceived to be a district with mixed kinds of housing. Closest to the allotment area, the zoning proposal contains villas. This project sees an opportunity to replace one of the villa blocks with smaller dwellings as a complement to the other types of housing in the area.
SITE
The proposal draws inspiration from the allotment area next to it, but it is denser, used all year around and focuses more strongly on common aspects.
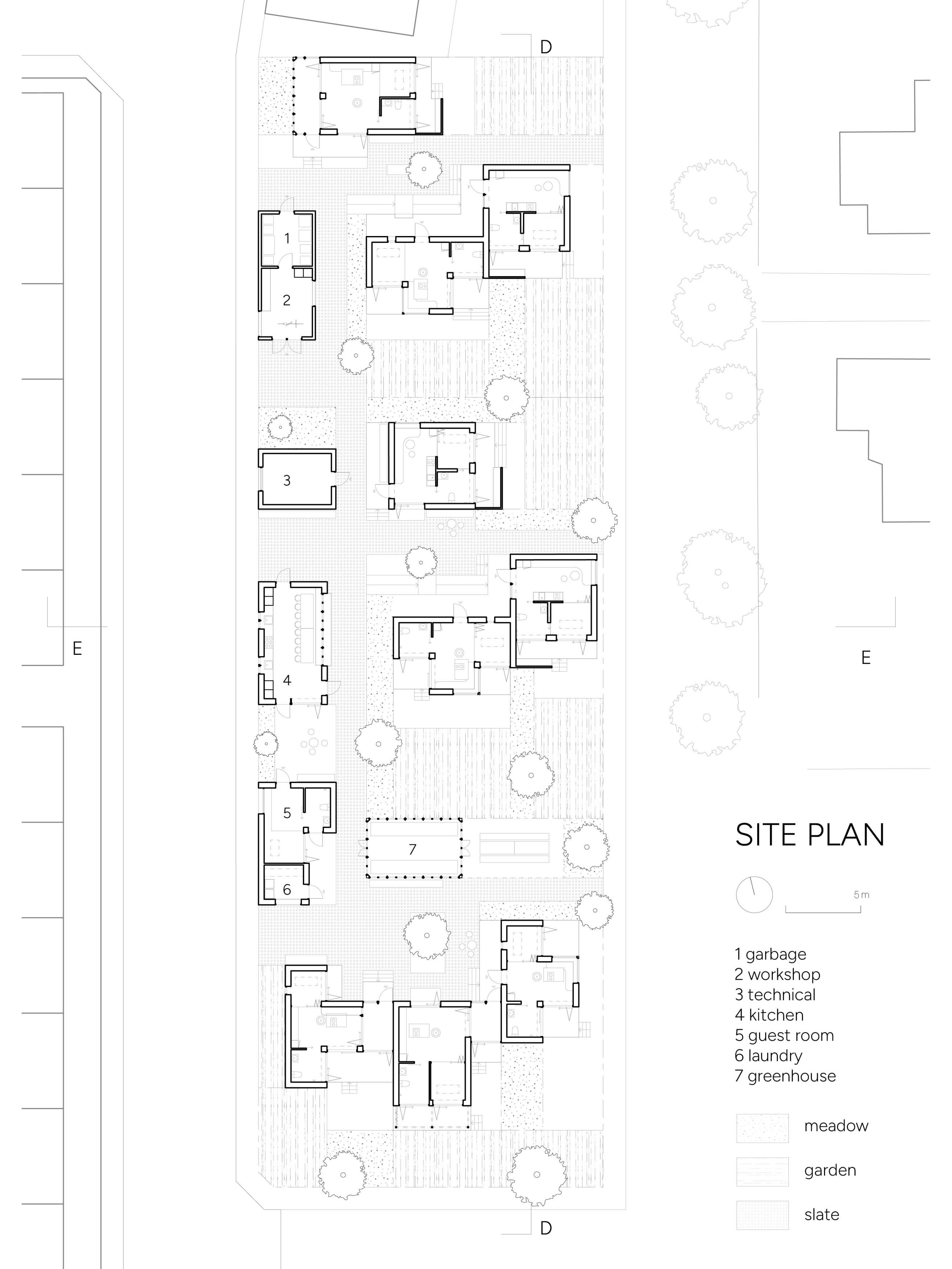
GARDEN
If one chooses to live at a smaller indoor area, perhaps it is possible to have access to more outdoor space? Each unit has a garden with space for growing crops, and at least one outdoor place that can still be considered as private.

BATHROOM
KITCHEN
REFERENCES & FURTHER READING
Bennett, J. (2010). Vibrant Matter : A Political Ecology of Things. Duke University Press.
Bennett, J. (2012). Powers of the Hoard: Further Notes on Material Agency. I JeromeCohen, J. (red.) Animal, Vegetable, Mineral: Ethics and Objects. Punctum Books.
Törnström, K. (2024). Leva mer med mindre – hur bor en vital materialist?














